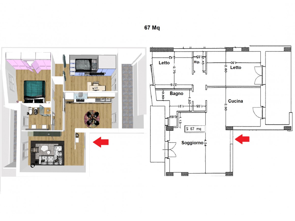
- 67 m²
- 2 Camere da letto
- 1 Servizi
Descrizione
Nella nuova lottizzazione di Quadrifoglio, le nostre agenzie Pianeta Casa & Casa Facile propongono un appartamento posto al primo piano di uno stabile in corso di costruzione.
L'abitazione misura circa 67 mq ed è composta da ingresso soggiorno, cucina abitabile, camera da letto matrimoniale con cabina armadio, cameretta e bagno padronale.
La soluzione inoltre presenta una veranda di circa 11 mq e un balconcino di 4 mq.
BREVI SPECIFICHE:
-Impianto termico a pavimento Caldo/freddo a pompa di calore;
-infissi della Nurit doppio vetrocamera a 4 step (apertura-microventilazione- vasistas- chiusura) ad isolamento termico ed acustico;
- tapparelle elettriche;
- Impianto fotovoltaico a servizio del vano condominiale e ascensore;
-Posto auto assegnato;
La costruzione è realizzata secondo le più recenti tecniche antisismiche ed energeticamente sostenibili in previsione delle recenti normative Europee volte a rendere l'immobile sicuro e a bassa emissioni, quindi bassi consumi di energia.
CONSEGNA PREVISTA LUGLIO 2024
Per ulteriori informazioni vi aspettiamo presso il nostro ufficio a Matera, in Viale Aldo Moro 16.
Lunedì-Venerdì 09.00-13.00 / 16.00-20.00, Sabato 09.30-12.30.
APE: "in corso di elaborazione"
A disposizione da: luglio 2024
Dettagli
- Anno di costruzione: 2024
- Condizioni: Nuovo
- Arredamento: Non arredato
- Garage: Spazio parcheggio privato
- Balcone (15m²)
Caratteristiche aggiuntive
- Ascensore
- Riscaldamento a pavimento
- Riscaldamento autonomo
| Camere da letto | 2 |
| Servizi | 1 |
| Area totale | 67 m² |
| Piano | 1 |
| Tipo | Appartamenti |
| Uso | abitazione |